
產品特性
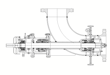
軸流聚烯烴循環管反應器泵采用無縫鍛造高壓彎頭套管,在反應器內循環原漿狀介質, 并具有傳熱效果好、容量大、耐高溫、耐高壓、中高速運行等優點;
高壓軸流聚烯烴循環管反應器泵是專為循環輸送聚乙烯(PE)、聚丙烯(PP)漿料介質及其他易燃易爆介質而設計的。
產品結構
高壓無縫鍛造彎頭套管按API標準、ASME鍋爐壓力容器規范進行設計和試驗;
三重機械密封是高壓和危險循環反應器軸流泵的標準配置,與其他設計相比,提供了更高的安全性和可靠性;
無縫鍛造高壓彎頭套管符合ASME鍋爐壓力容器規范;
符合API計劃32/53C/52密封安排和支持系統,確保足夠的密封面潤滑和冷卻,以確保正常運行;
直接安裝或帶彈簧底板,以適應環形反應堆容器的熱膨脹;
拋光葉輪和彎頭通道確保泵內部的流道平滑。

材料名稱 | 材料代號 | |
國標 | 美國標準 | |
不銹鋼 | 0Cr18Ni9 00Cr17Ni14Mo2 0Cr18Ni12Mo2 | CF-8(304) CF-3M(316L) CF-8M(316) |
主要配置項目 | 廠家標配 | 可選配置 |
電動機 | 國產品牌(重慶/西安 | 南陽,佳木斯,ABB,茵夢達或指定品牌 |
軸承 | SKF | SKF、NSK、FAG |
機械密封 | 博格曼 | 成都一通、日機密封 |
聯軸器 | 膜片聯軸器 |
